Búsqueda
Departamento 2D/1B Venta en La Florida-Plaza Vespucio
Departamento 2D/1B Venta en La Florida-Plaza Vespucio
40 / 40
2
1
Descripción
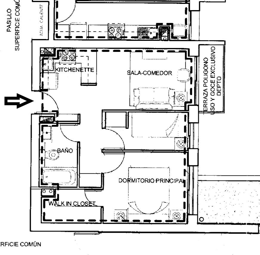
Descripción: Cómodo y acogedor departamento de 40 m² en el piso 14 de un moderno edificio de 24 pisos.
Con una excelente ubicación en Vicuña Mackenna Poniente 6690, a pasos de las estaciones de Metro Mirador y Bellavista de la Florida, este departamento ofrece una inmejorable conectividad y proximidad a comercio, bancos, colegios, notaría, y acceso a Centros Comerciales como Florida Center y Mall Vespucio.
El departamento cuenta con una distribución práctica y eficiente.
Superficie Útil aproximada: 40 m² Terraza: 2,52 m²
Dormitorios: 2; Baños: 1; Cocina Americana: Full electric, equipada con encimera de cuatro platos, horno y campana. Dormitorio Principal: Con walking closet. Baño: Con tina. Terraza: Cómoda y funcional. Pisos: Porcelanato en living comedor, cocina y baño; dormitorios alfombrados.
Gastos Comunes: $70.000 aprox., con cobro adicional por consumo de agua caliente.
Comodidades del Edificio: Acceso controlado y conserjería 24 hrs. Cámaras de vigilancia y portones eléctricos. Estacionamiento de visitas. Quincho y salón multiuso. Piscina. Lavandería, juegos infantiles y espacio para mascotas en áreas verdes. Placa comercial con varios locales.
No pierdas la oportunidad de vivir en un lugar que combina comodidad, seguridad y una excelente conectividad. ¡Agenda tu visita hoy mismo!
Precio UF 2.750 ¡¡aceptamos ofertas!!
Si gustas de negociar o necesitas alguna asesoría, estaremos atentos. Si ofertas con crédito hipotecario, sugerimos que cuentes con preaprobación, para conveniencia mutua.






























